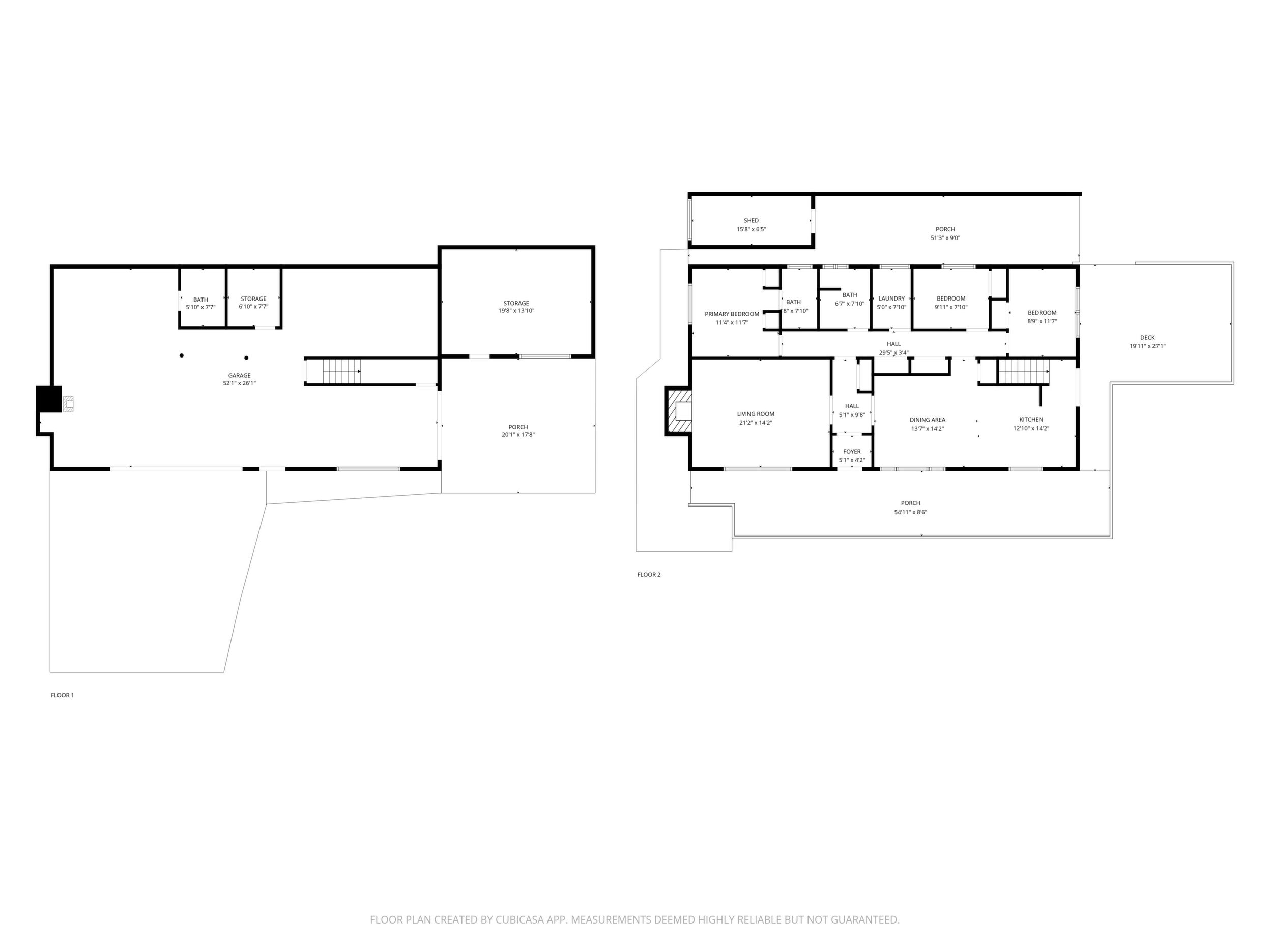
205 Marsh St
Gardiner, Oregon 97441
205 Marsh St
Gardiner, Oregon 97441
Local Weather
|
|
|
|
|
|
|
|
205 Marsh St
Gardiner, Oregon 97441
205 Marsh St
Gardiner, Oregon 97441
|
|
|
|
|
|
|
|